• 欢迎来到宁波市房地产业协会官网
您当前所在位置:首页 >>宁波楼市

2022年3月会员单位商品住宅计划开盘情况

  • 发布时间:2022-03-15
  • 信息来源:宁波房地产业协会

2022年3月预计将有

荣安、绿城、万科、保利、融创、建发、宝龙、龙光、

大唐、新中房等10家会员单位

15个楼盘

即将开盘或加推(详见下方图表)

 

 image.png

 

让我们一起看下

各个项目的详细情况吧

 

一、海曙区


朗拾里(-2)

 

image.png 

▲朗拾里效果图

 

继万科·沐拾之后,万科再次以拾系作品致敬宁波,更新城市繁华腹地的未来生活方式。历经千年潮汐,伴随着奉化江、南塘河的交织流淌,万科·朗拾以崭新的产品规制,革新奉化江岸天际线,为城市带来引领未来生活方式的品质改善筑作。

 

项目品牌:万科

项目地址:鄞奉路和段塘中路交叉口

售楼地址:启运路与环城西路交叉口往西100米(原海潮映月售楼处)

项目价格:商品住宅毛坯销售均价不高于33500元/㎡


主推户型图

 

image.png 

▲105㎡

3室2厅1厨2卫

 

image.png 

▲118㎡

3室2厅1厨2卫

 

image.png 

▲148㎡

4室2厅1厨2卫


image.png 

▲158㎡

4室2厅1厨2卫

 

image.png 

▲185㎡

4室2厅1厨2卫


image.png 

▲188㎡

4室2厅1厨2卫

 



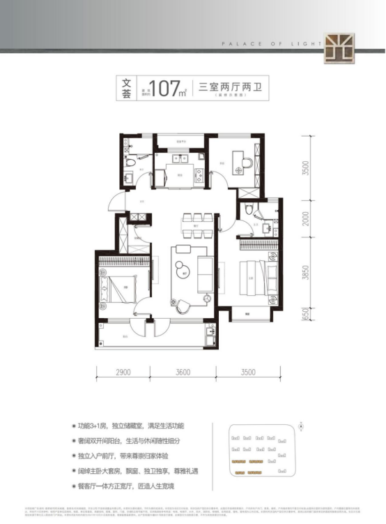
春著悦府(-5)

 

image.png 

▲春著悦府效果图

 

作为建发房产首入宁波的王府力作,建发·春江悦占位资源高度密集的鄞奉片区,耀踞天一广场、恒一广场、宁波第二座天街(在建)、南塘老街等主流商圈,帷幄地铁2号线、8号线(在建)等城市脉搏,在城芯之上,擘画繁华生活大境。

 

项目品牌:建发

项目地址:宁波市海曙区南塘公园西侧

售楼地址:宁波市海曙区南塘公园西侧春著悦府营销中心

项目价格:毛坯限价34400元/㎡

 

主推户型图

 

image.png 

▲119㎡

4室2厅1厨2卫


image.png 

▲133㎡

4室2厅1厨2卫



新月河滨府(首开)

 

image.png 

▲新月河滨府沿河透视效果图

 

荣安·新月河滨,位居“姚江新城”主引擎之一的姚江南岸,坐拥“宁波新外滩”五江口之澎湃、前瞻海曙首个未来社区(规划中)之迭新,近邻地铁望春桥站,于五江河景观带旁,布局8 栋高层住宅,精研建面约110-125㎡滨水住区。

 

项目品牌:荣安

项目地址:宁波市海曙区通途路与机场路交汇处

售楼地址:宁波市海曙区通途路与机场路交汇处往南100米

项目价格:毛坯限价28400元/㎡

 

主推户型图

 

image.png 

▲A 125㎡

4室2厅1厨2卫



image.png 

▲B1 110㎡

3室2厅1厨2卫


 

image.png 

▲B3 110㎡

3室2厅1厨2卫

 

image.png 

▲C 125㎡

4室2厅1厨2卫

 

 


二、江北区

 

湛蓝晓月(首开)

 

image.png 

▲湛蓝晓月户型楼幢分布图

 

湛蓝晓月,在“宁波第三心”姚江新城的发展大势下,依托万科云鹭湾小镇的宜居底盘,打造主城难得低密精致住区,以100、125㎡创新活力洋房产品,引领宁波人居迭代升级,为姚江百万方万科活力主场带来全新生活方式,致意未来的无限美好。

 

项目品牌:万科

项目地址:宁波市江北区慈城连接线与长兴路交叉口

售楼地址:宁波市江北区慈城连接线与长兴路交叉口,湛蓝生活体验中心(原万科云谷售楼处)

项目价格:商品住宅毛坯销售均价不高于23700元/㎡

 

主推户型图

 

image.png 

▲100㎡

3室2厅1厨2卫

 

image.png 

▲125㎡

4室2厅1厨2卫

 

 


滨河沁月(-3)

 

image.png 

▲滨河沁月效果图

 

滨河沁月,绿城首入宁波第三心——姚江新城的奥体封面作品。立于千年姚江畔,咫尺奥体中心。社区规划总建面约15.8万㎡,打造复合住宅、商业街区、幼儿园等多元业态。建面约110-180㎡致新复合社区,为姚江新城人居品质迭代。

 

项目品牌:绿城

项目地址:宁波·姚江新城·云飞路与洪塘中路交叉口(奥体中心东侧100米)

售楼地址:宁波·三江口·大庆南路与新马路交叉口

项目价格:毛坯限均价29300元/㎡

 

主推户型图

 

image.png 

▲109㎡

3室2厅1厨2卫

 

image.png 

▲B 132㎡

4室2厅1厨2卫

 

image.png 

▲C 132㎡

4室2厅1厨2卫

 

image.png 

▲185㎡

4室2厅1厨3卫



文创甬江城一期(-2)

 

image.png 

▲文创甬江城一期效果图

 

文创甬江城一线正南瞰江,同时东西南三大滨江公园无界相融,坐拥城芯难得的珍贵资源。项目总建筑面积约42万方,择址文创港核芯C位,以宝龙TOP系标杆作品,打造宁波未来百年的滨江城市新坐标。规划建面约94-148㎡江景奢品,以无界江景奢宅的产品力革新引领宁波人居新标准。

 

项目品牌:宝龙

项目地址:宁波市江北区文创港大庆北路(中兴大桥东侧)

售楼地址:宁波市江北区大庆北路(中兴大桥东侧)文创甬江城营销中心

项目价格:毛坯限价39900元/㎡

 

主推户型图

 

image.png 

▲110㎡

3室2厅1厨2卫

 

image.png 

▲148㎡

4室2厅1厨2卫

 


久云府(首开)

 

image.png 

▲久云府户型楼幢分布图

 

久云府项目是双百强上市房企大唐地产和龙光地产重金联合打造的项目,该地块属江北慈城新城板块,项目紧邻占地约500亩中心湖,周边配套成熟。项目占地约3.7万方,建筑面积约8.6万方,容积率仅1.6,由14幢洋房组成,共548户,总层高9—11层,户型面积为95平、105平、120平三个户型,满足不同年龄段家庭需求。

 

项目品牌:大唐、龙光

项目地址:宁波市江北区慈城新城慈浦路与丽泽街交汇处

售楼地址:宁波市江北区慈城新城慈浦路与丽泽街交汇处

项目价格:毛坯限价22200元/㎡

 

主推户型图

 

image.png 

▲A 95㎡

3室2厅1厨2卫


image.png 

▲B 95㎡

3室2厅1厨2卫

 

image.png 

▲105㎡

3室2厅1厨2卫

 

image.png 

▲120㎡

4室2厅1厨2卫






三、镇海区

 

三里风荷府(-2)

 

image.png 

▲三里风荷府沿河透视效果图

 

招商联袂荣安,打造逾22万方滨水生活共同体——三里风荷,择址镇海新城中轴,直线距离区府约1.5公里,商圈、动脉、学府、公园尽在执掌,钜制临水而居的滨水公园住区。建面约109-139㎡纯粹改善大户型,引领城市居住的迭代升级。

 

项目品牌:荣安、招商

项目地址:宁波市镇海区金华北路与镇骆西路交界处

售楼地址:宁波市镇海区金华北路与镇骆西路交界处

项目价格:毛坯限价21300元/㎡

 

主推户型图

 

image.png 

▲A1 109㎡

3室2厅1厨2卫

 

image.png 

▲A2 109㎡

3室2厅1厨2卫


image.png 

▲A3 109㎡

3室2厅1厨2卫

 

image.png 

▲130㎡

4室2厅1厨2卫






四、北仑区

 

通山郡(-2)

 

image.png 

▲通山郡效果图

 

一座约53万㎡大盘社区,择址北仑城市发展热土——凤凰城。呼应“青年北仑”城市战略,以“三化九场景”设计理念、“NEW AND YOUNG”价值主张,打造涵盖住宅、青年House、商业MALL、邻里中心等一体的综合社区,一站式满足居住、工作、教育、购物等需求。

 

项目品牌:绿城

项目地址:北仑霞浦街道,东至规划淮河路,南至规划云台山路,西至九峰北路,北至规划道路

售楼地址:黄山路和岷山路交叉口(通山未来社区生活馆)

项目价格:毛坯限价25600元/㎡

 

主推户型图

 

image.png 

▲101㎡

3室2厅1厨2卫


image.png 

▲119㎡

3室2厅1厨2卫


image.png 

▲E1 139㎡

4室2厅1厨2卫

 

image.png 

▲E2 139㎡

4室2厅1厨2卫



云起府(南区)(-2)

 

image.png 

▲云起府(南区)效果图

 

武汉城建·融创|江山云起是武汉城建集团与融创中国强强联合,于北仑区府旁,新一代城市中心——凤凰新城核心启动区,共同打造的“低密”、“改善”型城市封面作品。

 

项目品牌:武汉城建、融创

项目地址:南至防护绿地,西至辽河路,北至公园绿地,东至沿河绿地

售楼地址:宁波市北仑区凤凰新城泰山路与辽河路交叉口

项目价格:毛坯限价31000元/㎡

 

主推户型图

 

image.png 

▲115㎡

3室2厅1厨2卫


image.png 

▲125㎡

3室2厅1厨2卫

 

image.png 

▲139㎡

4室2厅1厨2卫

 

image.png 

▲153㎡

4室2厅1厨2卫

 

image.png 

▲190㎡

4室2厅2厨3卫

 

image.png 

▲238㎡

4室2厅2厨3卫

 

image.png 

▲282㎡

5室2厅2厨4卫



五、东钱湖

 

观棠晴雨府(首开)

 

image.png 

▲观棠晴雨府效果图

 

荣安·观棠晴雨,位居东钱湖新城,坐享千亿东钱湖新城发展利好,国际会议中心、开市客、隈研吾美术馆等规划相继落地,近揽地铁7号线(在建)东钱湖北站,3站直达东部新城。建面约89-123m²理想生活住区,即将绽放。

 

项目品牌:荣安

项目地址:宁波市鄞州区鄞县大道与天池路交汇处

售楼地址:宁波市鄞州区鄞县大道与天池路交汇处

项目价格:毛坯限价25800元/㎡

 

主推户型图

 

image.png 

▲A 89㎡

3室2厅2卫

 

image.png 

▲B 89㎡

3室2厅2卫

 

image.png 

▲C 98㎡

3室2厅2卫

 

image.png 

▲D 98㎡

3室2厅2卫


image.png 

▲119㎡

4室2厅2卫

 

image.png 

▲F 123㎡

4室2厅2卫

 

image.png 

▲G 123㎡

4室2厅2卫

 

 

 

 

 

 

 

六、奉化区

 

锦上月鸣府(-2)

 

image.png 

▲锦上月鸣府效果图

 

锦上月鸣,择址宁南芯,占据城镇发展转型示范区核心板块,坐拥未来城百亿配套,是面向未来的都会向新之地。项目占地约3.5万方,总建面约11.2万方,容积率约2.3,可售住宅户数约659户、商铺约56户。于宁南之芯,以经典与城市理想共鸣。

 

项目品牌:绿城、金茂

项目地址:宁波市中交未来城江宁路与霞浦路交汇处

售楼地址:宁波市奉化区江口街道江宁路113号锦上月鸣生活馆

项目价格:毛坯限价14400元/㎡

 

主推户型图

image.png 

▲99㎡

3室2厅1厨2卫

 

image.png 

▲118㎡

3室2厅1厨2卫

 

image.png 

▲137㎡

4室2厅1厨2卫




和光城樾庭(-3)

 

image.png 

▲生态文化城效果图

 

保利·翡翠城市|和光城樾,千亩生态芯,建面约85-107㎡国际青年住区,由央企保利和奉化交投联袂打造。周边名校云集,与项目自带幼儿园组成完善的12年优学教育链,周边医疗配套丰富。保利千亿央企,实力重构生态大城生活范本。

 

项目品牌:保利、奉化交投

项目地址:宁波市奉化区锦奉大道与长汀路交叉口

售楼地址:宁波市奉化区锦奉大道与长汀路交叉口(实验小学旁)

项目价格:毛坯限价15000元/㎡

 

户型图

image.png 

▲85㎡

3室2厅1厨2卫

 

image.png 

▲A 100㎡

3室2厅1厨2卫


image.png 

▲B 100㎡

3室2厅1厨2卫


image.png 

▲107㎡

3室2厅1厨2卫




秋和月明府(首开)

 

image.png 

▲秋和月明府效果图

 

荣安·秋和月明府,位于宁南中交未来城核心区之上,3号线旁,百米地铁琎琳站、8站到宁南,坐拥机场快速南路高架-东环路,轻松通达全城,建筑错位分布,户户临江,采光绝佳,匠造建筑面积约78/89m²品质三房。

 

项目品牌:荣安

项目地址:宁波市奉化区机场路和顺浦路交叉口

售楼地址:宁波市奉化区机场路和顺浦路交叉口

项目价格:毛坯限价22100元/m²

 

 

户型图

image.png 

▲78㎡

3室2厅1厨1卫

 

image.png 

▲78㎡

3室2厅1厨1卫


image.png 

▲89㎡

3室2厅1厨2卫


image.png 

▲89㎡

3室2厅1厨2卫


image.png 

▲89㎡

3室2厅1厨2卫





七、慈溪市

 

云颂府(首开)

 

image.png 

▲云颂府效果图

 

位踞西城核心宗汉街道,南临宗兴中路,周边近拥保利MALL、爱琴海国际广场、曙光实验小学、新世纪实验学校、锦纶中学等优质生活配套,出达万象,入适贤雅!三面临河稀缺自然资源,以美学生活理念规划打造低密度纯洋房居住区。

 

项目品牌:新中房

项目地址:慈溪市宗汉街道宗兴中路528号

售楼地址:慈溪市西三环北路776号康鑫梵石花园东门店铺

项目价格:毛坯限价14120元/㎡

 

主推户型图

image.png 

▲95㎡

3室2厅1厨2卫


image.png

▲100㎡

3室2厅1厨2卫


image.png

▲115㎡

3室2厅1厨2卫

 

image.png

▲135㎡

4室2厅1厨2卫