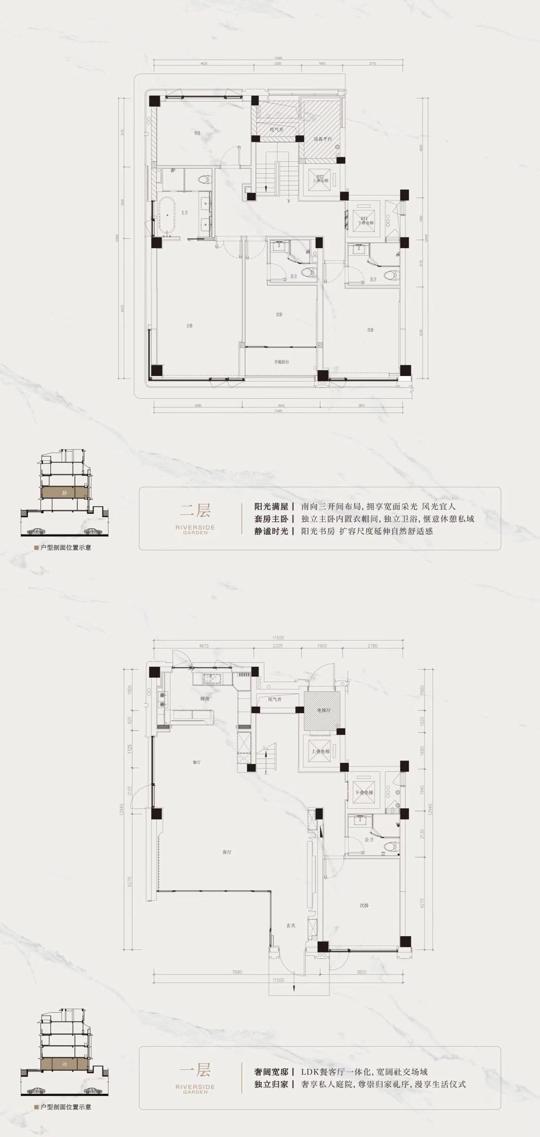
项目首页 项目信息 项目户型
姚江润园
参考均价: 0.0000 元/㎡面积范围: 154-255 ㎡
项目地址:浙江省宁波市江北区文教街道文教路555号 查看地图
开 发 商:保亿甬荣置业(宁波)有限公司
建筑类型:低层 多层 高层 其他装修标准:全装修
项目品牌:保亿区 县:江北区
街 道:文教街道 限 购:否
项目简介:
本项目位于宁波市江北区文教街道,西至育才路,南至规划绿地,东、北至文教路。总用地面积38247㎡,规划建筑面积为108667.65㎡,预测绘建筑面积为108658.60㎡,其中可售部分76098.23㎡,包含可售住宅67744.02㎡(366套),可售车位8354.21㎡(631个,其中微型车位6个)。
















